全國定制咨詢熱線
0769-23103048
氣液增壓缸設備行業(yè)優(yōu)選品牌!

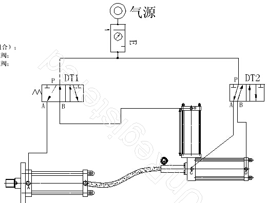
玖容預壓式氣液增壓缸氣路連接說明:
一、符號說明:
A:增壓缸預壓回位氣口
B:增壓缸預壓下降氣口
C:增壓缸增壓回位氣口
D:增壓缸增壓下降氣口
DT1:增壓缸控制預壓電磁閥
DT2:增壓缸控制增壓電磁閥

二、動作順序:
1、A口 C口通氣,此缸處于回升狀態(tài)。
2、b口進氣,a口排氣,壓縮空氣作用在儲油桶內的液壓油表面,液壓油驅動預壓腔活塞作位移,并使預壓腔活塞活塞桿軸段的模具抵觸到工件。
3、b口斷氣,d口進氣,壓縮空氣作用使增壓活塞作位移去擠壓預壓腔的液壓油,使液壓油膨脹,從而使預壓活塞桿軸端的模具保持高壓出力去擠壓成型工件。
4、c口進氣,d口排氣,增壓活塞回升,增壓活塞到位后,a進氣,d排氣,預壓活塞回位,此時液壓油回到儲油桶內,一個動作循環(huán)完成。
